324 Nguyễn Phúc Chu, P.Trảng Dài, TP. Biên Hòa, tỉnh Đồng Nai.
xaydungbinhanle@gmail.com
0974 775 625
Danh mục mẫu nhà
Hai người bạn thân \'chập\' đôi nhà thành một
Hai gia đình ở Đà Nẵng thân nhau, mua chung một khu đất. Họ xây hai ngôi nhà ở riêng biệt, nhưng nhìn ngoài, chúng như hòa vào một.
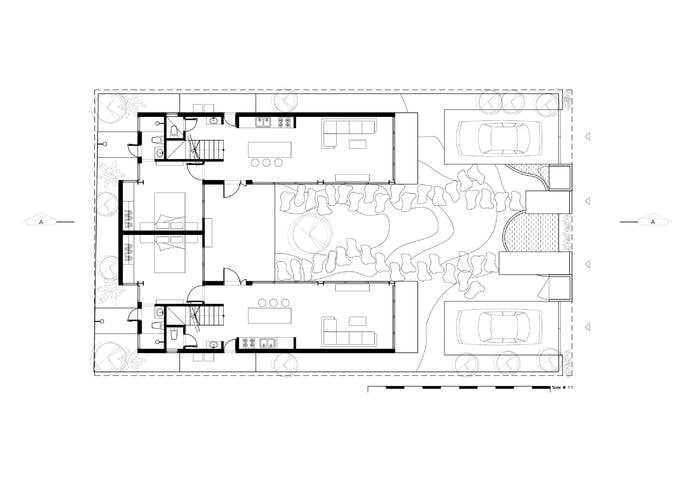
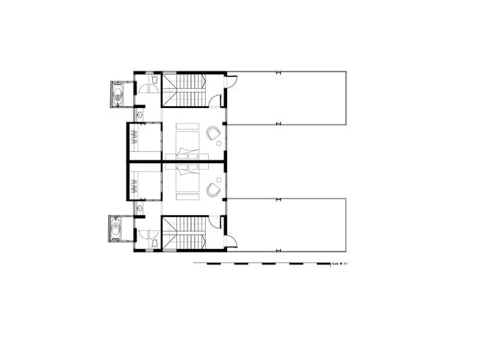
Ngôi nhà \"hai trong một\" được xây dựng trên miếng đất rộng 380 m2, nằm dưới chân núi Sơn Trà, Đà Nẵng. Nhà xây hai tầng, có tổng diện tích sàn 280 m2.
Hai người bạn thân \'chập\' đôi nhà thành một
Vật liệu xây nhà chủ yếu là thép và gạch thô. Công trình vừa hoàn thành đầu năm 2019. Dọn vào nhà ở một thời gian, gia chủ cảm thấy hài lòng vì mỗi sớm mai thức dậy luôn tràn đầy năng lượng nhờ được hít thở không khí trong lành.

Hy vọng với mẫu nhà trên mà Bình An Lê đã chia sẻ có thể giúp các bạn trang bị thêm cho mình những ý tưởng hữu ích về căn hộ sắp và đang được ấp ủ để có thể lên kế hoạch khi lựa chọn tổ ấm cho mình. Nếu các bạn muốn được tư vấn thêm về nhà nhà phố, biệt thự, nhà tiền chế,... đừng ngần ngại mà hãy liên hệ với Bình An Lê để được tư vấn và giải đáp cụ thể, chi tiết.
Thiết kế Kiến trúc khi thi công trọn gói
Hơn 300 công trình xây dựng đã thực hiện và đang thực hiện
Liên hệ để được tư vấn nhé!
--------
Công ty TNHH Tư vấn Thiết kế Xây dựng Bình An Lê
----------------- Biên Hòa, Đồng Nai ------------------
Chuyên tư vấn - Thiết kế - Xây dựng - Duy tu - Sửa chữa
Nhà phố, biệt thự, văn phòng, nhà quán, nhà xưởng...
Giá rẻ - Uy Tín - Chất Lượng - Nhanh chóng
Website: xaydungbinhanle.com
Gmail: Xaydungbinhanle@gmail.com
Hotline: 0974 775 625 hoặc 0251.3990.002