324 Nguyễn Phúc Chu, P.Trảng Dài, TP. Biên Hòa, tỉnh Đồng Nai.
xaydungbinhanle@gmail.com
0974 775 625
Danh mục mẫu nhà
Dưới đây là 9 mẫu mặt bằng biệt thự đẹp, được thiết kế khoa học, tối ưu hóa công năng sử dụng. Mời các bạn tham khảo để cho gia đình mình những mẫu thiết kế nhà khoa học và hợp lý nhất nhé.
Đây là mẫu biệt thự đơn giản, hiện đại với hình khối kiến trúc đẹp mắt, bố trí độc đáo.
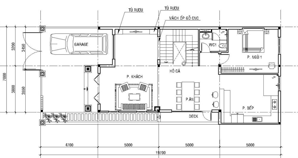
Mặt bằng tầng 1 được thiết kế khoa học. Gara để xe ô tô tiếp giáp bậc tam cấp về phía chiều ngang, phòng khách ở trung tâm, cầu thang thông tầng với thiết kế giếng trời và phần đáy giếng là hồ cá phong thủy. Đối diện cầu thang là phòng ăn và phòng bếp được thiết kế liền nhau. Phòng ngủ được thiết kế trong cùng đảm bảo sự riêng tư. Nhà vệ sinh chung được đặt ở gần cầu thang.

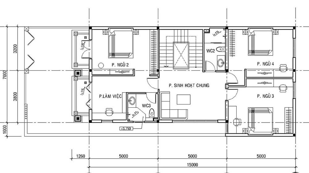
Mặt bằng tầng 2 gồm: Phòng sinh hoạt chung, 3 phòng ngủ trong đó có 1 phòng ngủ chính khép kín, 2 phòng ngủ nhỏ liền nhau và nhà vệ sinh chung.

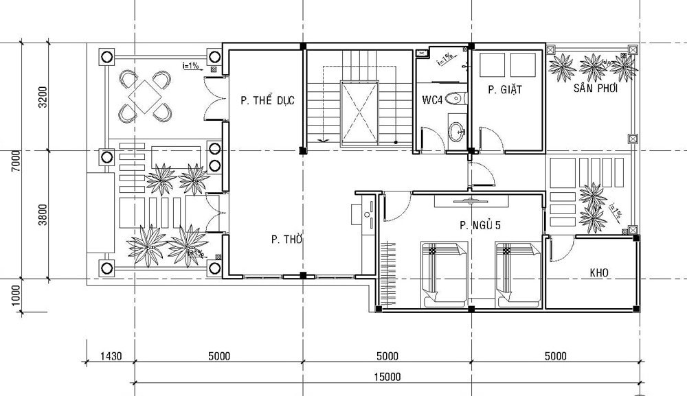
Mặt bằng tầng 3 gồm: Phòng thờ, 1 phòng ngủ, phòng thể dục, phòng giặt, nhà vệ sinh chung.

Mẫu biệt thự 3 tầng này được thiết kế với tổng diện tích là 250m2, gây ấn tượng với hình khối đẹp mắt, cách tạo hình thông minh. Hệ thống vách kính cường lực được sử dụng thay cho những khối tường, vừa tạo hiệu ứng ánh sáng cho không gian chung vừa tăng tính thẩm mĩ.

Mẫu biệt thự mini với thiết kế kiến trúc hiện đại, kiên cố và sang trọng, kết hợp cùng với màu sắc tinh tế, trang nhã khiến ngôi nhà trở nên cuốn hút đối với người nhìn.
Hệ thống kính cường lực kết hợp với gỗ và hệ thống tường rào phía trước bố trí thông minh tạo ra sức hút và sức sống vô cùng mạnh mẽ cho căn nhà.

Đây là mẫu biệt thự được thiết kế với hình khối kiến trúc đơn giản và thông thoáng. Ngôi nhà được xây với mục đích kết hợp kinh doanh cho thuê và ở nên mọi không gian sinh hoạt của các thành viên trong gia đình đều tập trung ở tầng 1.

Mẫu biệt thự được thiết kế với hình khối kiến trúc thông minh và kiên cố kết hợp với hệ thống cây xanh tạo nên không gian tràn ngập sức sống theo cách tinh tế và hài hòa nhất.

Các khối hình, họa tiết, màu sắc của ngôi nhà đều được các kiến trúc sư tính toán hợp lý và chi tiết làm tôn lên sự thanh thoát và bề thế của mẫu biệt thự nhỏ nhưng ấm cúng.

Mẫu biệt thự Tân cổ điển được thiết kế tỉ mỉ đến từng chi tiết với sự tinh tế, sang trọng và đẹp mắt. Từ hệ thống tường bao, mái ngoài, khối ban công cho đến mái giật cấp đều toát lên sự thanh thoát và bền vững của công trình.

Công trình được thiết kế với hình khối đơn giản nhưng tinh tế và tràn ngập sức sống.
Mẫu biệt thự được thiết kế cân đối, hài hòa với hình khối chạy dọc theo hình chữ nhật, mái thái giật cấp, màu sắc và họa tiết trang trí có sự phân bổ đồng đều, đẹp mắt.
Trên đây là một số mẫu biệt thự đang thịnh hành hiện nay mà công ty Xây dựng An Bình Lê muốn gửi đến quý khách hàng.
Các quý khách có thể vào đây hoặc vào đây để xem các dự án của Bình An Lê.
Quý khách có thể tham khảo thêm rất nhiều dịch vụ về thiết kế nhà ở, xây nhà trọn gói, sửa nhà trọn gói...vui lòng truy cập website:
Hoặc quý khách có thể liên hệ trực tiếp theo :
